DOM FELIX REKREACJA
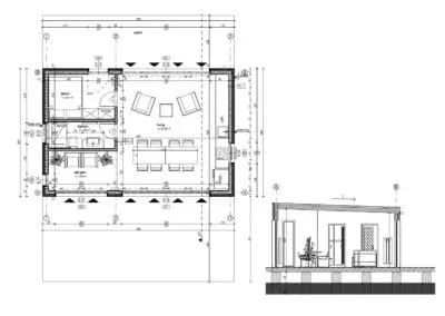
DOM WAKACYJNY FELIX 54 m2
Poznaj nasz nowy model domu całorocznego, który może być Twoim domem wakacyjnym lub mieszkalnym. Nowoczesna bryła przykuwa uwagę, a duża ilość przeszkleń sprawia, że dom jest jasny i przytulny. Dom idealnie sprawdzi się dla 3-4 osobowej rodziny. A dzięki konstrukcji szkieletowej zawsze będziesz mógł go rozbudować.
WYMIARY:
Powierzchnia zabudowy: 54 m2
Szerokość: 900 cm
Głębokość: 600 cm
Wysokość: 300 cm
Stan deweloperski CAŁOROCZNY
od 224 900 PLN + vat
- Stan surowy zamknięty oraz:
OPCJE DODATKOWO PŁATNE:
- elewacja z thermo sosny (Faza lub Romb)
- boazeria wewnątrz domu
- taras
- drzwi przesuwne (PSK, HST)
- grzejniki elektryczne w każdym pomieszczeniu
- zmiany konstrukcyjne domku
- słupy fundamentowe
Nie czekaj – czas to pieniądz!
Porozmawiajmy teraz o Twoim wymarzonym domu.
Zapraszamy do kontaktu telefonicznego oraz odwiedzenia naszych realizacji.

