DOM FELIX REKREACJA
DOM FELIX 55m2- PARTEROWA STODOŁA
Poznaj nasz nowy model domu całorocznego, który może być Twoim domek wakacyjnym lub mieszkalnym. Nowoczesna bryła przykuwa uwagę, a duża ilość przeszkleń sprawia, że dom jest jasny i przytulny. Dzięki możliwości podwyższenia domu możesz zaaranżować dodatkowe antresole nad sypialniami. Zbuduj z nami swój wymarzony dom.
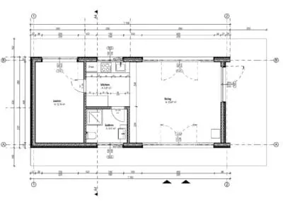
WYMIARY:
Powierzchnia zabudowy: 55 m2
Szerokość: 1100 cm
Głębokość: 500 cm
Wysokość: 410 cm
Stan deweloperski całoroczny
od 231 500 pln + vat
OPCJE DODATKOWO PŁATNE:
- elewacja z thermo sosny (Faza i Romb)
- boazeria wewnatrz domku
- dociepleine budynku płytą PIR do wersji energooszczędnej
- taras/pergola
- grzejniki elektryczne w każdym pomieszczeniu
- słupy fundamentowe
PAMIETAJ! KAŻDY DOM MOŻESZ DOWOLNIE MODYFIKOWAĆ.
Nie czekaj – czas to pieniądz!
Porozmawiajmy teraz o Twoim wymarzonym domu.
Zapraszamy do kontaktu telefonicznego oraz odwiedzenia naszych realizacji.

