DOM #1 35 m2 PARTEROWY
DOM LETNISKOWY #1 35 m²
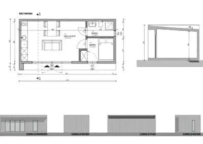
Dom #1 to drewniany parterowy dom letniskowy z tarasem. Wariant całoroczny zapewni komfort wypoczynku o każdej porze roku. Prosty design sprawia, że przypadnie on do gustu każdemu, kto ceni sobie surowość i prostotę. Horyzontalna bryła domku wpasuje się w każdy krajobraz. Mimo niewielkiej powierzchni, wnętrze domku zostało tak zaprojektowane, aby jego mieszkańcy mieli poczucie przestrzeni.
Cena: od 81 500 zł*
Powierzchnia zabudowy: 35 m²
Dostępność:zapytaj o dostępne terminy
WYMIARY:
Szerokość: 400 cm
Głębokość: 875 cm
Wysokość: 300 cm
Nie czekaj – czas to pieniądz!
Porozmawiajmy TERAZ o Twoim wymarzonym domu.
Zapraszamy do kontaktu telefonicznego oraz odwiedzenia naszych realizacji.
2 pokoje
1 łazienka
parterowy
dach płaski
pow. zab. 35 m²
Dom całoroczny (rekreacja)
Stan surowy zamkniętyDom całoroczny (rekreacja)
Stan deweloperskiOPCJE DODATKOWO PŁATNE:
-
elewacja z Thermo Sosny (Faza/Romb)
-
dodatkowe docieplenie domku
-
podłoga
-
wełna drzewna Steico zamiast mineralnej
-
boazeria wewnątrz domku
-
wydzielenie dodatkowych pomieszczeń
-
dodatkowe okna
-
żaluzje/moskitiery
-
ogrzewanie podłogowe
-
klimatyzator
-
panele podłogowe
-
taras/pergola
-
słupy fundamentowe/fundament

