DOM #7 35 m2 PARTEROWY
DOM wakacyjny #7 35 m2
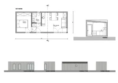
Nowoczesny domek letniskowy w typie pawilonu o wymiarach 3,8 x 9,2 m oferuje dużo miejsca. Duża ilośc okien doświetli każde pomieszczenie. Dom o powierzchni zabudowy 35 m kw. możesz zgłosić w uproszczonym trybie. Możliwość dobudowania tarasu.
Cena od: 81 000 zł*
Powierzchnia zabudowy: 35 m²
Dostępność: ok.3 miesiące
* Pełen cennik w zależności od wybranej opcji wykończenia jest dostępny poniżej. Jeśli masz pytania lub jesteś zainteresowany ofertą, zapraszamy do kontaktu.
WYMIARY:
Szerokość: 380 cm
Głębokość: 920 cm
Wysokość: 300 cm
Wysokosć wewn.: 240-260 cm
2 pokoje
1 łazienka
parterowy
dach płaski
pow. zab. 35m²
Dom całoroczny (rekreacja)
Stan deweloperski
od 110 000 pln + vat
OPCJE DODATKOWO PŁATNE:
- elewacja z thermo Sosny (Faza/Romb)
- płyta Fermacell
- wydzielenie dodatkowych pomieszczeń
- wełna drzewna Steico zamiast mineralnej
- boazeria
- taras/pergola
- słupy fundamentowe
KAŻDY DOM MOŻESZ DOWOLNIE MODYFIKOWAĆ!
Nie czekaj – czas to pieniądz!
Porozmawiajmy teraz o Twoim wymarzonym domu.
Zapraszamy do kontaktu telefonicznego oraz odwiedzenia naszych realizacji.

